Быстрый заказ, позвонить +7-978-708-85-73
Дроссель Amadeus Productions. Быстрый заказ по телефону.
(Viber, WhatsApp, Telegram)
Amadeus Productions Дроссельный узел на Lancer IX 1.6 (4G18), 2.0 (4G63) и другие моторы
Ремкомплект РХХ на Mitsubishi Lancer IX, 1.6 (4G18), MD619857, 1450A116
Облегченный маховик на 1.6 (4G18) и другие моторы
Облегченные шкивы на 1.6 (4G18) и другие моторы
One-touch или "Ленивые поворотники"

5 страниц V  < 1 2 3 4 > »   
Reply to this topicStart new topic
> Ремонт таунхауса, Общими силами :)
NightPoisk
сообщение 24.6.2017, 18:13
Сообщение #21


Последний романтик
*******

Группа:
Маньячила неугомонный
Сообщений: 5376
Регистрация: 1.7.2012
Из: Москва, Новые Черёмушки-Большая Москва, г.Московский, ЖК "Юго-Западный"
Вне форума


Репутация:   451  


"Ну вы .... даёте!"(с) (IMG:style_emoticons/default/laugh.gif) (IMG:style_emoticons/default/laugh.gif) (IMG:style_emoticons/default/laugh.gif)
Ещё года три назад свою коллегиальность выяснили, а теперь опять! Но наверно "девичья память" это хорошо - чуть время прошло и все старые открытия опять новые! (IMG:style_emoticons/default/biggrin.gif)
Go to the top of the page
¬
Вставить ник в форму быстрого ответа
+Quote Post
Titus
сообщение 24.6.2017, 18:43
Сообщение #22


Don Amadeus
*******

Группа:
Главные администраторы
Сообщений: 29960
Регистрация: 19.2.2009
Из: Russia, Sevastopol
Вне форума
Авто: Lancer IX-1.6 MT Turbo, Honda Accord IX-2.4 AT Executive.

Репутация:   466  


Та да (IMG:style_emoticons/default/biggrin.gif) (IMG:style_emoticons/default/drinks.gif) Ждите через 3 года вновь подобное обсуждения! (IMG:style_emoticons/default/biggrin.gif)
Go to the top of the page
¬
Вставить ник в форму быстрого ответа
+Quote Post
kontrast86
сообщение 24.6.2017, 23:39
Сообщение #23


Технический Маньяк-Гуру
*******

Группа:
Технический Маньяк
Сообщений: 1616
Регистрация: 30.8.2011
Из: NEW MOSCOW, Kommunarka Luxury Village
Вне форума
Авто: Nissan Qashqai 2.0

Репутация:   118  


Олег, память у тебя какая-то избирательная я смотрю ))) Что важно не запоминает, а подобные мелочи ловит и держит (IMG:style_emoticons/default/biggrin.gif) (IMG:style_emoticons/default/laugh.gif)

Друзья, в связи с предстоящей электрикой озаботился вопросом видеонаблюдения (IMG:style_emoticons/default/ph34r.gif) Планирую камеры по периметру, чтобы всю парковку освещало и торец. Кто-нибудь в теме данного вопроса? Может дадите наводку куда копать, с чего начинать? Варианты решений и оборудования? Пока бы просто кабель заложить на текущем этапе, кабель для камер универсальный?
Go to the top of the page
¬
Вставить ник в форму быстрого ответа
+Quote Post
Titus
сообщение 24.6.2017, 23:50
Сообщение #24


Don Amadeus
*******

Группа:
Главные администраторы
Сообщений: 29960
Регистрация: 19.2.2009
Из: Russia, Sevastopol
Вне форума
Авто: Lancer IX-1.6 MT Turbo, Honda Accord IX-2.4 AT Executive.

Репутация:   466  


Мне по душе HikVision - если тащить с AliExpress - цены приятные получаются совсем)

IP-камеры с PoE (к примеру, HikVision DS-2CD2032-I), под них достаточно заложить только витую пару, питание через витую пару передается с регистратора (к примеру, HikVision DS-7108N-SN/P) или от отдельных блоков питания, удобнейшая вещь.

Конкретные модельки я привел просто как якорный ориентир, отталкиваясь от них можно подобрать близкие девайсы (рекомендую той же фирмы) под свои нужды.
Если вопросы будут по видеонаблюдению - задавай, я в качестве личного интереса пару лет увлекаюсь этим, для дома, для семьи...)))
Go to the top of the page
¬
Вставить ник в форму быстрого ответа
+Quote Post
kontrast86
сообщение 24.6.2017, 23:52
Сообщение #25


Технический Маньяк-Гуру
*******

Группа:
Технический Маньяк
Сообщений: 1616
Регистрация: 30.8.2011
Из: NEW MOSCOW, Kommunarka Luxury Village
Вне форума
Авто: Nissan Qashqai 2.0

Репутация:   118  


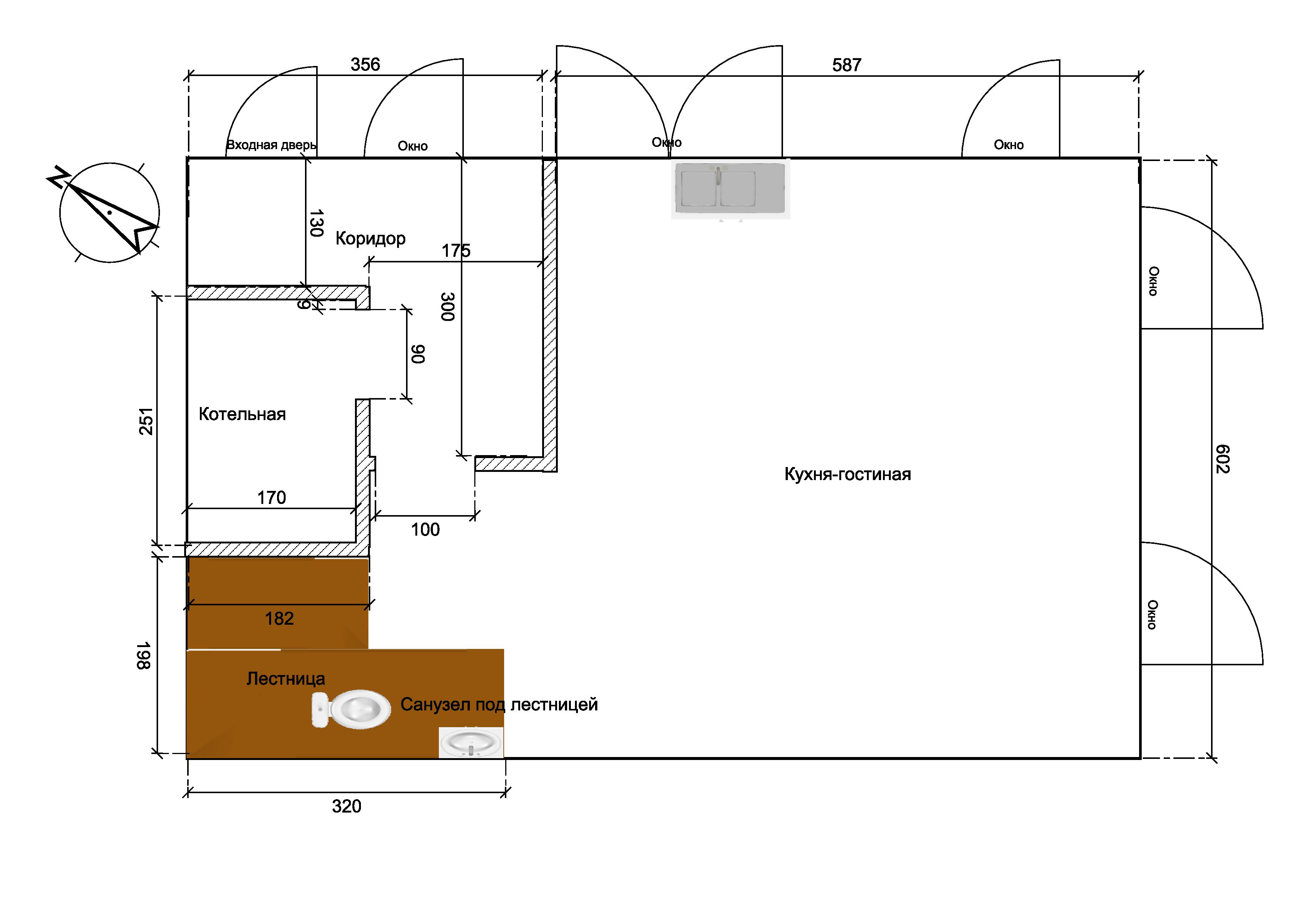
Выложу придуманную планировку, по которой возвели стены и сейчас штукатурят. Расположение сантехустройств условное.

1 этаж:

Прикрепленное изображение


2 этаж:

Прикрепленное изображение


3 этаж:

Прикрепленное изображение

Go to the top of the page
¬
Вставить ник в форму быстрого ответа
+Quote Post
kontrast86
сообщение 15.7.2017, 19:24
Сообщение #26


Технический Маньяк-Гуру
*******

Группа:
Технический Маньяк
Сообщений: 1616
Регистрация: 30.8.2011
Из: NEW MOSCOW, Kommunarka Luxury Village
Вне форума
Авто: Nissan Qashqai 2.0

Репутация:   118  


А тем временем дела идут. Поставили мне неделю назад металлокаркас лестницы с 1 на 2 этаж. Все вроде ничего, но поставили его на 2 см выше нужного. Вчера приезжали переделывать... В общем опуская подробности скажу, что лишь сегодня с матами-перематами закончили, лестница вся крученая, но в допусках. Уровень отклонения больше чем на 1 градус не показывает. Другой вопрос, что я люблю, когда пузырек ровно по центру (IMG:style_emoticons/default/smile.gif)

Как-то так:

Прикрепленное изображение


Прикрепленное изображение


Штукатурку почти закончили, еще правда кладка стенки под этой лестницей для гостевого туалета + штукатурка и можно переходить к инженерии ))

Вопрос консультационный, может кто подскажет. Всю электрику решил делать по потолку, т.к. под стяжкой будет водяной теплый пол на пеноплэксе, а фигурно вырезать пеноплэкс совершенно не хочется. Но тем не менее плиты у меня неровные, особенно первый этаж, там перепад до 3,5 см (особенно критичны стыки пустотных плит, т.к. пол первого этажа у меня из плит, а остальное монолит), чуть лучше на 2 этаже и еще лучше на третьем. Вопрос, как быть. Укладывать пеноплэкс на такой неровный пол нехорошо, вопрос чем лучше подровнять? Делать стяжку - двойная относительно сложная работа, да и самые высокие точки мне поднимать совсем не надо, надо лишь сократить разницу между ними и низшими точками... Налить саморастекайкой - вариант самый подходящий и наверно удобный, вот только сама растекайка стоит прилично. Может еще что упустил?
Go to the top of the page
¬
Вставить ник в форму быстрого ответа
+Quote Post
tryval
сообщение 15.7.2017, 20:18
Сообщение #27


Супер Технический Маньяк
*****

Группа:
Технический Маньяк
Сообщений: 878
Регистрация: 2.6.2012
Из: Донбасс.Красный Луч
Вне форума
Авто: lancerX

Репутация:   91  


Костя , у меня полистирол на щебень клали , а потом трубу и стяжку . " пеноплэкс на такой неровный пол нехорошо " , а что с ним будет ? Полы ведь не буграми , а просто перепад ?
Go to the top of the page
¬
Вставить ник в форму быстрого ответа
+Quote Post
kontrast86
сообщение 15.7.2017, 21:03
Сообщение #28


Технический Маньяк-Гуру
*******

Группа:
Технический Маньяк
Сообщений: 1616
Регистрация: 30.8.2011
Из: NEW MOSCOW, Kommunarka Luxury Village
Вне форума
Авто: Nissan Qashqai 2.0

Репутация:   118  


Явные бугры у меня только на первом этаже, т.к. там, повторюсь, стыки плит, которые уложены с перепадом до 2 см, а также всякая связующая арматура прилитая раствором.

Поясню свои опасения, как пишут, перепад высот в пределах одного контура теплого пола должен быть не больше половины диаметра трубы, т.е. в моем случае 7,5 мм, если брать по внутреннему диаметру. Соответственно в противном случае якобы могут в трубе застревать пузырьки воздуха и препятствовать движению теплоносителя. Я это себе слабовато представляю, т.к. все-таки теплоноситель подается под давлением, но тем не менее.

Плиты пеноплэкса будут относительно тонкие, на втором и третьем этажах 2 см, на первом этаже еще буду просчитывать, но толще, скорее всего 50-80 мм.
Go to the top of the page
¬
Вставить ник в форму быстрого ответа
+Quote Post
kontrast86
сообщение 15.7.2017, 21:11
Сообщение #29


Технический Маньяк-Гуру
*******

Группа:
Технический Маньяк
Сообщений: 1616
Регистрация: 30.8.2011
Из: NEW MOSCOW, Kommunarka Luxury Village
Вне форума
Авто: Nissan Qashqai 2.0

Репутация:   118  


Цитата(Titus @ 24.6.2017, 23:50) *
Мне по душе HikVision - если тащить с AliExpress - цены приятные получаются совсем)

Витя, спасибо! Почитал на досуге, похоже именно эта фирма и именно с AliExpress - оптимальный вариант на сегодня. Буду двигаться в этом направлении. Тем более в ближайшей перспективе никаких затрат - только витая пара к каждой камере.

Кстати, пару вопросов, которые не совсем понял:
1) Есть ли у регистраторов этой фирмы возможность хранить/зеркалировать записи в облаке?
2) Возможно ли подвести патч-корды к единому коммутатору, а далее уже один патч-корд подвести к регистратору? Или надо четко один конец патч-корда в камеру, другой в регистратор?
Go to the top of the page
¬
Вставить ник в форму быстрого ответа
+Quote Post
Titus
сообщение 15.7.2017, 21:23
Сообщение #30


Don Amadeus
*******

Группа:
Главные администраторы
Сообщений: 29960
Регистрация: 19.2.2009
Из: Russia, Sevastopol
Вне форума
Авто: Lancer IX-1.6 MT Turbo, Honda Accord IX-2.4 AT Executive.

Репутация:   466  


Пожалуйста (IMG:style_emoticons/default/smile.gif)

1) Да, свежий софт все позволяет это делать.
2) Можно и так и так, и даже комбинировать, как удобно (IMG:style_emoticons/default/smile.gif)
Даже можно к регистратору подключить совсем удаленную камеру - от другого провайдера и в другом городе - регистратор видит камеру как устройство на IP-адресе и общается с ней по своему протоколу, главное, чтобы ширины канала хватало в данном случае.
Go to the top of the page
¬
Вставить ник в форму быстрого ответа
+Quote Post
tryval
сообщение 15.7.2017, 21:36
Сообщение #31


Супер Технический Маньяк
*****

Группа:
Технический Маньяк
Сообщений: 878
Регистрация: 2.6.2012
Из: Донбасс.Красный Луч
Вне форума
Авто: lancerX

Репутация:   91  


Цитата(kontrast86 @ 15.7.2017, 21:03) *
Явные бугры у меня только на первом этаже, т.к. там, повторюсь, стыки плит, которые уложены с перепадом до 2 см, а также всякая связующая арматура прилитая раствором.

Поясню свои опасения, как пишут, перепад высот в пределах одного контура теплого пола должен быть не больше половины диаметра трубы, т.е. в моем случае 7,5 мм, если брать по внутреннему диаметру. Соответственно в противном случае якобы могут в трубе застревать пузырьки воздуха и препятствовать движению теплоносителя. Я это себе слабовато представляю, т.к. все-таки теплоноситель подается под давлением, но тем не менее.

Плиты пеноплэкса будут относительно тонкие, на втором и третьем этажах 2 см, на первом этаже еще буду просчитывать, но толще, скорее всего 50-80 мм.

Неровности можно песком выровнять , или отсевом (только серым , он когда слежится становится твёрдым ) , но его желательно пролить водой . Всё дешевле саморовняйки , и стоять будет - никуда не денется .
Go to the top of the page
¬
Вставить ник в форму быстрого ответа
+Quote Post
kontrast86
сообщение 16.7.2017, 15:39
Сообщение #32


Технический Маньяк-Гуру
*******

Группа:
Технический Маньяк
Сообщений: 1616
Регистрация: 30.8.2011
Из: NEW MOSCOW, Kommunarka Luxury Village
Вне форума
Авто: Nissan Qashqai 2.0

Репутация:   118  


Цитата(Titus @ 15.7.2017, 21:23) *
Пожалуйста (IMG:style_emoticons/default/smile.gif)

1) Да, свежий софт все позволяет это делать.
2) Можно и так и так, и даже комбинировать, как удобно (IMG:style_emoticons/default/smile.gif)
Даже можно к регистратору подключить совсем удаленную камеру - от другого провайдера и в другом городе - регистратор видит камеру как устройство на IP-адресе и общается с ней по своему протоколу, главное, чтобы ширины канала хватало в данном случае.

Я наверно понял, камера по сути является устройством со своим статичным или динамичным ip в заданной подсети, так? И тогда, конечно, все равно подключена она напрямую к регистратору или к свитчу.
Go to the top of the page
¬
Вставить ник в форму быстрого ответа
+Quote Post
kontrast86
сообщение 16.7.2017, 15:42
Сообщение #33


Технический Маньяк-Гуру
*******

Группа:
Технический Маньяк
Сообщений: 1616
Регистрация: 30.8.2011
Из: NEW MOSCOW, Kommunarka Luxury Village
Вне форума
Авто: Nissan Qashqai 2.0

Репутация:   118  


Цитата(tryval @ 15.7.2017, 21:36) *
Неровности можно песком выровнять , или отсевом (только серым , он когда слежится становится твёрдым ) , но его желательно пролить водой . Всё дешевле саморовняйки , и стоять будет - никуда не денется .

Думал про песок, даже на youtube видел ролик про это. Но что-то не знаю. Мне бы все-таки субстанцию твердеющую, пусть не сразу и не сильно (IMG:style_emoticons/default/biggrin.gif) А что за отсев? Отсев чего?
Go to the top of the page
¬
Вставить ник в форму быстрого ответа
+Quote Post
Titus
сообщение 16.7.2017, 16:50
Сообщение #34


Don Amadeus
*******

Группа:
Главные администраторы
Сообщений: 29960
Регистрация: 19.2.2009
Из: Russia, Sevastopol
Вне форума
Авто: Lancer IX-1.6 MT Turbo, Honda Accord IX-2.4 AT Executive.

Репутация:   466  


Цитата(kontrast86 @ 16.7.2017, 15:39) *
Цитата(Titus @ 15.7.2017, 21:23) *
Пожалуйста (IMG:style_emoticons/default/smile.gif)

1) Да, свежий софт все позволяет это делать.
2) Можно и так и так, и даже комбинировать, как удобно (IMG:style_emoticons/default/smile.gif)
Даже можно к регистратору подключить совсем удаленную камеру - от другого провайдера и в другом городе - регистратор видит камеру как устройство на IP-адресе и общается с ней по своему протоколу, главное, чтобы ширины канала хватало в данном случае.

Я наверно понял, камера по сути является устройством со своим статичным или динамичным ip в заданной подсети, так? И тогда, конечно, все равно подключена она напрямую к регистратору или к свитчу.



Верно (IMG:style_emoticons/default/smile.gif)
Плюс, если айпи реальный или сделан проброс через порт NATом - можно видеть и регик и камеры по отдельность удаленно, есть софтины под мобилы - очень удобно (IMG:style_emoticons/default/smile.gif)
Если настраивать через облако - там еще проще все.
В общем - вариантов море и все весьма прикольно)))
Go to the top of the page
¬
Вставить ник в форму быстрого ответа
+Quote Post
tryval
сообщение 16.7.2017, 18:47
Сообщение #35


Супер Технический Маньяк
*****

Группа:
Технический Маньяк
Сообщений: 878
Регистрация: 2.6.2012
Из: Донбасс.Красный Луч
Вне форума
Авто: lancerX

Репутация:   91  


Если не ошибаюсь , отсев у вас дресвой зовут .
Go to the top of the page
¬
Вставить ник в форму быстрого ответа
+Quote Post
kontrast86
сообщение 18.7.2017, 22:53
Сообщение #36


Технический Маньяк-Гуру
*******

Группа:
Технический Маньяк
Сообщений: 1616
Регистрация: 30.8.2011
Из: NEW MOSCOW, Kommunarka Luxury Village
Вне форума
Авто: Nissan Qashqai 2.0

Репутация:   118  


Цитата(Titus @ 16.7.2017, 16:50) *
Верно (IMG:style_emoticons/default/smile.gif)
Плюс, если айпи реальный или сделан проброс через порт NATом - можно видеть и регик и камеры по отдельность удаленно, есть софтины под мобилы - очень удобно (IMG:style_emoticons/default/smile.gif)
Если настраивать через облако - там еще проще все.
В общем - вариантов море и все весьма прикольно)))

В общем все понятно. Теперь главное витую пару раскидать по нужным местам, тут тоже главное не ошибиться, чтобы обзор был адекватный. Еще есть мысль несколько камер поставить внутри.
Go to the top of the page
¬
Вставить ник в форму быстрого ответа
+Quote Post
kontrast86
сообщение 18.7.2017, 22:59
Сообщение #37


Технический Маньяк-Гуру
*******

Группа:
Технический Маньяк
Сообщений: 1616
Регистрация: 30.8.2011
Из: NEW MOSCOW, Kommunarka Luxury Village
Вне форума
Авто: Nissan Qashqai 2.0

Репутация:   118  


Цитата(tryval @ 16.7.2017, 18:47) *
Если не ошибаюсь , отсев у вас дресвой зовут .

Честно сказать, слово "дресва" слышу впервые. Погуглил и в принципе понял о чем речь. Меня все-таки смущают, скажем так, его рассыпчатые свойства. Возникла следующая мысль. Взять обычный пескобетон, рассыпать его, выровняв под правило по полу. Далее из пульверизатора, чтобы от давления воды не получить ямы, пролить водой. Ну а дальше дать высохнуть, по итогам теоретически должна получиться корка, может быть и не особо прочная, но по крайней мере достаточная для хождения по ней и укладки теплоизоляции. Что скажете? Как идея?
Go to the top of the page
¬
Вставить ник в форму быстрого ответа
+Quote Post
Titus
сообщение 18.7.2017, 23:18
Сообщение #38


Don Amadeus
*******

Группа:
Главные администраторы
Сообщений: 29960
Регистрация: 19.2.2009
Из: Russia, Sevastopol
Вне форума
Авто: Lancer IX-1.6 MT Turbo, Honda Accord IX-2.4 AT Executive.

Репутация:   466  


Цитата(kontrast86 @ 18.7.2017, 22:53) *
Цитата(Titus @ 16.7.2017, 16:50) *
Верно (IMG:style_emoticons/default/smile.gif)
Плюс, если айпи реальный или сделан проброс через порт NATом - можно видеть и регик и камеры по отдельность удаленно, есть софтины под мобилы - очень удобно (IMG:style_emoticons/default/smile.gif)
Если настраивать через облако - там еще проще все.
В общем - вариантов море и все весьма прикольно)))

В общем все понятно. Теперь главное витую пару раскидать по нужным местам, тут тоже главное не ошибиться, чтобы обзор был адекватный. Еще есть мысль несколько камер поставить внутри.


На все вопросы - "да")
По обзору - в идеале иметь одну в руках и с ее помощью разрисовать план, либо есть спец-софт (не пользовал, но, в инете попадался).
Я привык, после определенной практики, "на глазок" прикидывать - что и как мы будем видеть и как охватить весь необходимый периметр)))
Go to the top of the page
¬
Вставить ник в форму быстрого ответа
+Quote Post
LAN 298
сообщение 18.7.2017, 23:32
Сообщение #39


Маньяк в быту
*******

Группа:
Домовой
Сообщений: 3146
Регистрация: 19.2.2009
Из: Revda-КПК(Днепровский)-Krasnovodsk-Kolomna-Moscow
Вне форума
Авто: 4WD

Репутация:   646  


Цитата(kontrast86 @ 18.7.2017, 22:59) *
Возникла следующая мысль. Взять обычный пескобетон, рассыпать его, выровняв под правило по полу. Далее из пульверизатора, чтобы от давления воды не получить ямы, пролить водой. Ну а дальше дать высохнуть, по итогам теоретически должна получиться корка, может быть и не особо прочная, но по крайней мере достаточная для хождения по ней и укладки теплоизоляции. Что скажете? Как идея?



Нормальная идея. На заре покорения Столицы, мы только так и делали. Шпарили по мелким заказам. Например сорвать в кухне линолеум с оргалитом на смоле, как правило со всей стяжкой, устроить новую стяжку и накидать плитку. Мотались по всей Москве на метро , особо много инструмента не возили. Да и из-за 6-10 кв.м. месилово не было желания делать . Карманной горелкой паяли стыки полос стеклогидроизола, выставляли две трубы как маяки, засыпали пескобетоном и поливали зажатым шлангом до образования луж. Кто только как не называет такой способ: то армянская стяжка, то молдавская, то цыганская, но тем не менее жалоб не было, хотя плитка в нарушение всех технологических сроков через неделю уже была уложена! (IMG:style_emoticons/default/smile.gif)
Go to the top of the page
¬
Вставить ник в форму быстрого ответа
+Quote Post
kontrast86
сообщение 19.7.2017, 17:52
Сообщение #40


Технический Маньяк-Гуру
*******

Группа:
Технический Маньяк
Сообщений: 1616
Регистрация: 30.8.2011
Из: NEW MOSCOW, Kommunarka Luxury Village
Вне форума
Авто: Nissan Qashqai 2.0

Репутация:   118  


Сергей, спасибо! Думаю, так и поступлю. Мне кажется это самым дешевым и простым в исполнении вариантом.

Ну а тем временем мои бойцы прикрутили временные ступени:

Прикрепленное изображение


Еще стенку под ними ставить будущего санузла. Надо до холодов успеть закончить кладочно-штукатурные работы, заложить трассы под кондиционер, выровнять пол и сделать всю электрику (IMG:style_emoticons/default/smile.gif) Ну и еще по мелочи вроде плитки на балконе и, возможно, плитки на стенах котельной. Скорее всего зиму все будет без отопления в замороженном до весны состоянии.
Go to the top of the page
¬
Вставить ник в форму быстрого ответа
+Quote Post

5 страниц V  < 1 2 3 4 > » 
Fast ReplyReply to this topicStart new topic
2 чел. читают эту тему (гостей: 2, скрытых пользователей: 0)
Пользователей: 0

 



Быстрый заказ, позвонить +7-978-708-85-73
Дроссель Amadeus Productions. Быстрый заказ по телефону.
(Viber, WhatsApp, Telegram)
Amadeus Productions Дроссельный узел на Lancer IX 1.6 (4G18), 2.0 (4G63) и другие моторы
Ремкомплект РХХ на Mitsubishi Lancer IX, 1.6 (4G18), MD619857, 1450A116
Облегченный маховик на 1.6 (4G18) и другие моторы
Облегченные шкивы на 1.6 (4G18) и другие моторы
One-touch или "Ленивые поворотники"